今天给大家带来的分享是关于橡胶和塑料软管及软管组合件的静液压试验之爆破压力试验的内容。
1、试样
1.1 软管组合件
当进行软管组合件试验时,装配的组合件长度应符合试验条件。
1.2 软管
进行静液压试验和爆破压力试验所用软管试样的最小自由长度,不包括管接头和加固件,如果同时测量形变时,软管试样的最小自由长度应为 600mm,否则为 300mm。当某一根特定型别或尺寸的软管需要进行更长的测量时,应在软管产品标准中作出规定。
2、升压速度
升压速度应是恒定的,对公称内径小于或等于 50mm 的软管应在 30s~60s 之间达到最终压力。对于公称内径大于 50mm 而小于或等于 250mm 的软管,其达到最终压力所需时间应在 60s~240s 之间。对于公称内径大于 250mm 的软管,和/或当测试软管长于 1.2 规定的最小自由长度时,达到最终压力所需要的时间应由制造厂和使用者决定。
3、爆破压力试验
按照第“2”条规定的速度升高压力,直至软管和软管组合件破坏。
端部接头的泄漏、接头拔脱或距接头末端 25mm 内的破裂或与软管外径相等的距离内的破裂(以较严重者为准)视为组合件性能失效。
在试验报告中应记录下软管爆破损坏的位置和状态。如果产品标准中有规定,当达到规定的爆破压力时结束试验。
该试验应被视为破坏性试验,应根据当地环境指南处置试样。
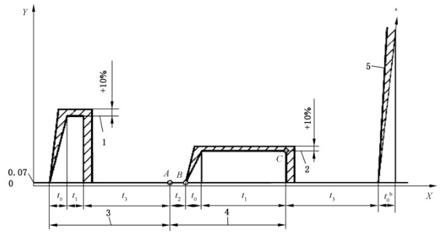
试验步骤的说明,见图 1。
此完整试验程序(验证压力——试验压力——爆破压力)仅适用于“型式试验”。对于例行试验,验证压力后的“测量程序”仅适用于当相关软管产品标准有规定时。

标引序号说明:
X——时间,t;
Y——压力,p(MPa);
1——验证压力;
2——试验压力;
3——泄露和缺陷的检测;
4——测量;
5——爆破压力;
t0——规定压力增加时间;
t1——规定压力保持时间;
t2——在参考压力(0MPa 或 0.07MPa)下初始尺寸(长度和直径)时测量时间;
t3——不同压力下规定的等待时间;
a——即将爆破。
b——爆破。
图 1 规定的静液压试验程序
以上就是今天的分享!如果您对用于上述试验的橡胶和塑料软管及软管组合件的静压爆破试验装置感兴趣,欢迎与我们联系!
