今天给大家带来的分享是关于高压往复密封圈高温密封和低温密封性能试验的内容。如果您对用于试验的相关密封试验装置感兴趣,欢迎与我们联系!
1、高温密封试验
1.1 试验设备
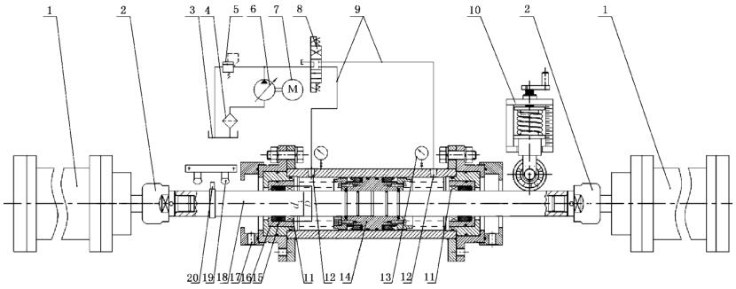
图 1 为密封试验设备的典型示意图。该设备应具有试验偏心可调、试验压力可调、自动换向、施加轴向力、侧向力(轴向、侧向力可调)功能。试验设备主要技术参数见表 1。

说明:
d1——轴直径;D——腔体直径;1——轴向力装置;2——联轴器;3——油箱;4——过滤器;5——溢流阀;
6——液压泵;7——电动机;8——方向控制阀;9——油管;10——侧向力装置;11——被试密封圈;
12——接进(回)油路;13——压力计;14——活塞;15——滑动轴承;16——密封圈腔体偏心套;
17——接泄漏油管;18——轴;19——行程控制装置;20——速度传感器。
图 1 高温密封试验设备典型示意图
表 1 高温密封试验设备主要技术参数表
| 项目 | 技术参数 |
| 偏心量调整范围 /mm | 0~1 |
| 温度范围 /℃ | 0~200 |
| 压力范围 /MPa | 0~30 |
| 往复频率 /(次循环 /min) | 0~30 |
| 往复行程 /mm | 0~200 |
1.2 试验条件
试验条件如下:
a)偏心量:按表 2 设定;
b)试验温度:油温 135℃±3℃;
c)轴往复频率:10 次循环 /min~20 次循环 /min,应在循环周期 3% 的时间内,由 0 升至最大值(允许误差 ±5%),或由最大值降至 0,如图 2 所示;
d)试验压力:转向器总成最大工作压力(脉冲压力),应在循环周期 3% 的时间内,由 0 升至最大值(允许误差 ±5%),或由最大值降至 0,如图 3 所示;
e)侧向力:与用户协商确定;
f)轴向侧:与用户协商确定;
g)试验介质:转向器实际使用的液压油;
h)往复行程:转向器齿条可运行的最大行程;
i)试验循环次数:20 万次。
注:每往返一次为 1 个循环
表 2 高压往复密封圈高温密封试验静偏心量设定
单位为毫米
| 项目名称 | 轴径 d1 | ||||
| 5<d1≤15 | 15<d1≤25 | 25<d1≤35 | 35<d1≤45 | 45<d1≤55 | |
| 静偏心量 | 0.10 | 0.15 | 0.20 | 0.25 | 0.30 |
注:轴径 d1 大于 55mm 的高压往复密封圈静偏心量的设定与用户协商确定。 | |||||

图 2 轴往复(或轴转速)循环一个周期变化示意图
注:0%~50% 循环周期内正向行程;50%~100% 循环周期内反向行程。

图 3 试验压力循环一个周期变化示意图
1.3 试验程序
试验程序如下:
a)将 2 只密封圈,按要求安装到试验设备上。
b)每运行 2 万次循环,停机 2h 为一个试验周期,共运行 10 个试验周期。
c)一个试验周期中每 2h 检测一次泄漏情况和测量泄漏量,同时记录温度、压力和往复频率。
1.4 记录
在密封圈的试验记录表中记录所有试验数据。
1.5 判定标准
经试验,2 只密封圈均无可见渗漏或泄漏,该项试验通过。
2、低温密封试验
2.1 试验设备
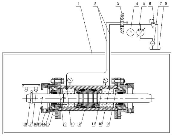
图 4 为低温密封试验设备的典型示意图。该设备应具有偏心可调、试验压力可调和温度控制功能。
试验设备主要技术参数见表 3。

说明:
d1——轴直径;D——腔体直径;1——低温试验箱;2——油管;3——方向控制阀;4——电动机;
5——液压泵;6——溢流阀;7——过滤器;8——油箱;9——被试密封圈;10——接近(回)油管;
11——压力计;12——活塞;13——滑动轴承;14——密封圈腔体偏心套;15——接泄漏油管;
16——轴;17——行程控制装置;18——速度传感器。
图 4 低温密封试验设备典型示意图
表 3 低温密封试验设备主要技术参数表
| 项目 | 技术参数 |
| 偏心量调整范围 /mm | 0~1 |
| 温度范围 /℃ | 0~-70 |
| 压力范围 /MPa | 0~30 |
| 往复频率 /(次循环 /min) | 0~30 |
| 往复行程 /mm | 0~200 |
2.2 试验条件
试验条件如下:
a)密封圈偏心量:按表 2 设定;
b)试验温度:-40℃±3℃;
c)轴往复频率:10 次循环 /min~20 次循环 /min,应在循环周期 3% 的时间内,由 0 升至最大值(允许误差 ±5%),或由最大值降至 0,如图 2 所示;
d)试验压力:转向器总成最大工作压力(脉冲压力),应在循环周期 3% 的时间内,由 0 升至最大值(允许误差 ±5%),或由最大值降至0,如图 3 所示;
e)试验介质:转向器实际使用的液压油;
f)往复行程:转向器齿条可运行的最大行程。
2.3 试验程序
试验程序如下:
a)将 2 只密封圈,按要求安装到试验设备上,并将试验介质注满试验设备腔体;
b)将安装好密封圈的试验设备放入低温试验箱内,待箱内温度达到设定温度后保持 16h,然后按 2.2 中的试验条件运行不少于 10 次往复循环。
c)观察并记录试验情况。
2.4 记录
按 1.4 的规定进行。
2.5 判定标准
应符合 1.5 的规定。