评定液压往复运动密封件性能的试验参数及试验程序:
1、试验参数
1.1 试验介质
试验介质应是符合 GB/T 7631.2-2003 规定的 ISO-L-HS32 合成烃型液压油液。
1.2 试验介质温度
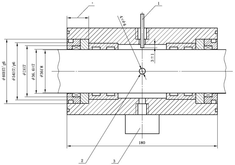
在试验过程中,试验介质温度应保持在 60℃~65℃,测量试验温度的热电偶安装位置如图 1 所示。

说明:
1——热电偶;2——试验油的底部入口和顶部出口;3——压力传感器。
a 凹槽长度(=密封件槽体长度+隔离套长度),公差为 -00.2。
图 1 装配要求
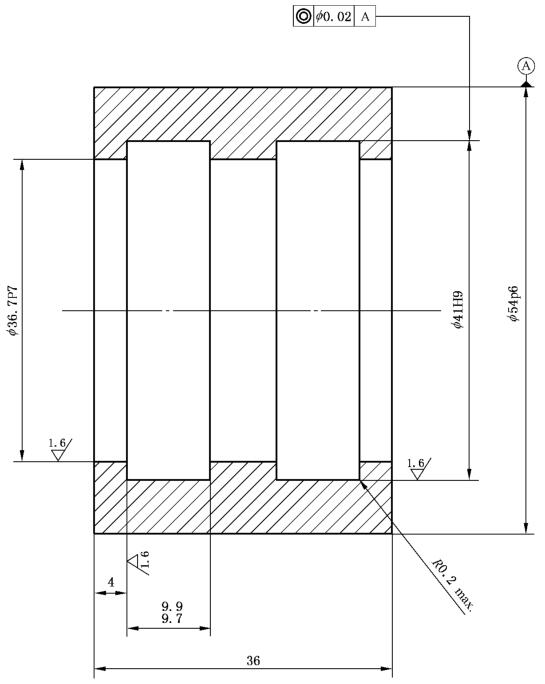
1.3 支承环
支承环应符合要求,其沟槽应满足图 2 的要求。

槽体材料:钢。
图 2 支承环沟槽
1.4 试验压力
试验压力 p1,选择如下,误差控制在 ±2%:
——6.3MPa(63bar);
——16MPa(160bar);
——31.5MPa(315bar)。
1.5 线性驱动器速度
线性驱动器速度,选择如下,误差控制在 ±5%:
——0.05m/s;
——0.15m/s;
——0.5m/s。
1.6 动态试验
试验压力和行程应按如下方式循环:
a)在恒定压力 p1 下的前进行程;
b)在恒定压力 p2 下的返回行程。
压力循环应满足图 3 要求,行程循环应满足图 4 要求。

图 3 压力循环

图 4 速度循环
2、试验程序
2.1 试验步骤
2.1.1 按 GB/T 10610-2009 沿着活塞杆轴向测量试验活塞杆表面粗糙度 Ra 和 Rt,每次取样长度 0.8mm,评定长度 4mm。
2.1.2 使用分辨率为 0.02mm 的非接触测量仪器测量新试验密封件尺寸:d1,d2,S1,S2 和 h。
2.1.3 安装新试验密封件和 2 个新的泄漏集油防尘圈。
2.1.4 将油温升到试验温度。
2.1.5 试验装置以线速度 v,稳定介质压力 p1 往复运动 1h。
2.1.6 在往复运动结束前,记录至少一个循环的摩擦力曲线,并记录摩擦力 Ft。
2.1.7 停止往复运动,维持试验压力 p1 和试验温度 16h。
2.1.8 测量启动摩擦力。
2.1.9 试验装置继续以线速度 v 按 1.6 的循环要求往复运动,压力在前进行程 p1 和返回行程 p2 之间交替。
2.1.10 完成 200 000 次不间断循环(线速度为 0.05m/s 时,完成 60 000 次循环)。如果循环中断,忽略重新启动至达到平稳状态时的泄漏。
2.1.11 在不间断循环过程中,每试验 24h 后和完成 200 000 次循环后,收集、测量并记录每个密封件的泄漏量。
2.1.12 完成不间断循环后,按 2.1.5 和 2.1.6 测量恒定压力下的摩擦力。
2.1.13 继续按 2.1.9 的要求进行往复运动。
2.1.14 不间断完成总计 300 000 次循环。速度为 0.05m/s 时完成总计 100 000 次循环。
2.1.15 完成不间断循环后,按 2.1.5 和 2.1.6 测量恒定压力下的摩擦力。
2.1.16 按 2.1.7 和 2.1.8 再次测量启动摩擦力。
2.1.17 停止试验。
2.1.18 按 2.1.2 测量拆下的试验密封件,并对密封件的状况进行拍照和记录。
2.2 试验次数
为了获得合理的数据,每一类型密封件应至少进行 6 次试验。