今天给大家带来的分享是关于气雾剂产品-气雾罐耐压性能及气雾阀固定盖耐压性能测试方法的内容。
1、气雾罐耐压性能
1.1 气密性能试验
1.1.1 仪器
气雾罐气密性水浴试验仪。
1.1.2 试验方法
将样罐装在水浴试验仪上,浸入水中充气加压至 0.80MPa~0.85MPa,观察整个罐体 1min 内是否有气泡冒出。
1.2 变形压力和爆破压力测试
1.2.1 仪器
气雾罐爆破压力测定仪:压力范围 0MPa~6.0MPa。
1.2.2 测定方法
在样罐内注满清水,插入密封头,旋(夹)紧后,将罐内充水加压逐渐升高至变形压力规定值,保持 0s,然后卸压,观察罐体有无永久性变形。然后再重新升压至爆破压力规定值,保持 10s,观察罐体是否爆破。
2、气雾阀固定盖耐压性能
2.1 仪器
测试仪器为:
a)压力试验仪,如图 1 所示,压力表精度 1.6 级,量程 0MPa~2.5MPa;
b)专用百分表,如图 2 所示,测量范围 0mm~10mm,分度值 0.01mm。
单位为毫米
![]() | ![]() |
| a)ϕ25.4mm 气雾阀压力试验仪 | b)ϕ20mm 气雾阀压力试验仪 |
图 1 压力试验仪示意图
单位为毫米

图 2 气雾阀固定盖耐压性测试专用百分表示意图
2.2 测试方法
将样品用专用百分表测量 h 值(见图 3)后放入压力试验仪内,加压至 1.8MPa 保持 1min,卸压后取出样品,然后再用专用百分表测量h值,按式(1)计算二次测量值之间的变化,变化值 Δh 不大于 0.30mm 为合格:
Δh=h2-h1……………………(1)
式中:
h2——受内压后的h值,单位为毫米(mm);
h1——受内压前的h值,单位为毫米(mm)。

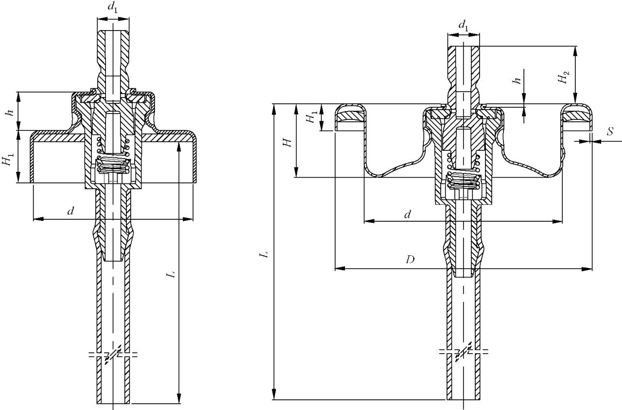
| a)ϕ20mm 气雾阀 | b)ϕ25.4mm 气雾阀 |
说明:
D——固定盖外翻边外直径;S——固定盖材料厚度;d——固定盖内直径;L——引液管计算长度;H——固定盖总高度;
H2——阀杆高度;H1——固定盖外翻边高度;d1——阀杆直径。h——固定盖小凸台高度;
图 3 气雾阀与气雾罐及促动器配合尺寸示意图
以上就是今天的分享!如果您对用于上述试验的耐压性能测试设备感兴趣,欢迎与我们联系!