材料空蚀试验通常采用振动空蚀、转盘空蚀和射流空蚀等三种方法,不同方法对应的试验装置有不同要求,下面我们来学习一下!
1、振动空蚀试验装置
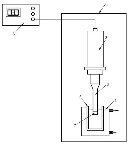
1.1 振动空蚀试验装置组成见图 1。

标引序号说明:
1——隔音装置;2——变频器;3——变幅杆;4——恒温装置;
5——试验容器;6——电源;7——试样。
图 1 振动空蚀试验装置示意图
1.2 振动空蚀试验装置采用变频器驱动变幅杆和试样产生轴向振动,变频器通过磁致伸缩或压电换能器作用于变幅杆上,测试试样安装于变幅杆的底部,整个换能器-变幅杆-试样系统应在(20±0.5)kHz 频率下进行纵向共振。
1.3 装置应能实现振动频率和振幅的监测与调控,并提供计时器来控制测试时间或在预设时间后自动关闭测试,装置功率应足以使试样在水中保持恒定的振动频率和振幅。
1.4 变幅杆宜采用锥形柱状结构,其长度(包括试样厚度)和结构设计应保证试样端获得最大振幅。
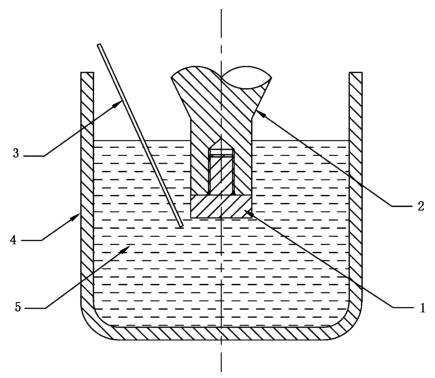
1.5 试样直径应与变幅杆顶端外直径相等,且一端带螺纹,螺纹与变幅杆的螺纹孔相配合,试样安装见图 2。

标引序号说明:
1——试样;2——变幅杆;3——温度传感器;4——试验容器;5——试验介质。
图 2 试样安装示意图
1.6 变频器和变幅杆应无外力和振动的干扰,同时为了减少噪声辐射,装置宜安装隔声罩。
1.7 试验容器宜采用圆柱形玻璃容器,直径不小于 100mm,高度不小于 100mm。
1.8 宜采用恒温水浴的方式控制试验容器中的介质温度,此时需将试验容器浸入恒温水浴中;亦可在试验容器中安装控温盘管来控制介质温度。温度传感器的位置尽可能靠近样品,但应放置在不干扰空蚀过程且不受空蚀破坏的位置。宜放置在样品外围径向约 3mm,且深度低于样品表面约 3mm 的位置。
2、转盘空蚀试验装置
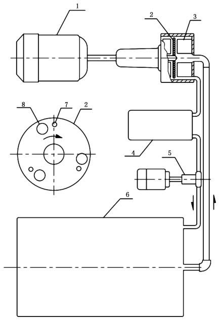
2.1 转盘空蚀试验装置见图 3。

标引序号说明:
1——电机;2——转盘;3——静止翼;4——热交换器;
5——泵;6——水槽;7——空泡发生器;8——试样。
图 3 转盘空蚀试验装置示意图
2.2 转盘空蚀试验装置利用电机驱动转盘在水中高速旋转,使得空泡发生器产生空泡。试验装置在整个试验过程中应保持恒定的工况。
2.3 转盘由联结轴套、空泡发生器和试样槽组成。联结轴套将转盘通过销键和电机旋转轴联结,空泡发生器用于制造空泡,空泡发生器的结构形式和尺寸影响空泡性能,推荐直径为(16±0.05)mm 通孔,边缘无倒角、无毛刺。试样槽用来承载材料试样,试样槽(或试样)的位置应位于空泡剥蚀区域中,以获得足够的空蚀强度,同时防止剥蚀转盘。
2.4 利用水泵使水在转盘、水槽和热交换器之间循环,试验过程中保持水温恒定。
2.5 基本测量仪器为测定质量的天平,最小分度值应在 0.1mg,精度达 3 级,其他仪器可按具体试验要求选定。
3、射流空蚀试验装置
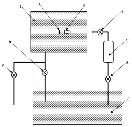
3.1 射流空蚀试验装置见图 4。该装置使装在试样托架上的试样在试验介质中受到来自正面射流产生的空泡爆裂以及高压水流冲刷,达到空泡腐蚀的作用。

标引序号说明:
1——水箱;2——截止阀;3——高压泵;4——高压调压阀;5——喷嘴;
6——试样及试样托架;7——试验腔;8——低压调压阀;9——安全阀。
图 4 射流空蚀试验装置示意图
3.2 试验装置由水箱、高压泵、管路阀门、试验腔等组成,其中试验腔由储液罐、试样托架、喷嘴及管路等组成。试验腔应可密闭,并承受试验所需的压力,必要时可在试验腔内安装测量系统。
3.3 利用高压泵和高压调压阀调节控制喷嘴射流的压力和流速,应能满足喷嘴的最大入口压力不低于 10MPa,最大流量不低于 5L/min。利用低压调压阀控制喷嘴出口压力(即试验腔内的压力),通过调节喷嘴入口和出口压力比控制试验的空化系数。
3.4 试样托架用于固定测试试样,托架的形状设计为圆柱形,顶端直径与试样一致。测试试样需加工和试样托架顶端外直径一样的盘状,而且有一端直径较小的螺杆,以便与试样托架顶端的螺纹孔相配合。试样托架上螺纹孔的深度应与试样螺杆长度一致。
3.5 应保证试样托架、试样以及喷嘴不受外力的影响而产生振动,并保持同心状态。可通过加装固定支架来减少这类因素的影响。
3.6 喷嘴为细长的圆柱形孔,进口边缘应锋利,不应有手工加工的缺陷和毛刺。喷嘴应由高耐蚀的合金制成。喷嘴的形状影响其性能,推荐的喷嘴结构尺寸如图 5 所示。
单位为毫米

图 5 喷嘴的结构尺寸