消防水枪的试验方法:
1、基本参数试验
1.1 试验装置的要求
喷射性能试验装置的允许工作压力应大于水枪最大工作压力的 1.2 倍,稳压精度 ±2%。装置中的压力测量精度不低于 1.5 级,流量测量精度不低于 ±1%。测压孔的位置应位于水枪进口 2 倍管径~4 倍管径之间,测压孔处的通径应和水枪进口通径保持一致。
1.2 射程试验
将水枪置于喷射架上,顺风向布置,调整水枪轴线与水平线的夹角(仰角)至 30°±1°,同时使喷嘴出口中心至地面的高度为 1m±0.01m,外界风速应不大于 2m/s。
水泵启动后,使水枪进口压力达到规定的额定喷射压力值的 ±2% 以内,待喷射稳定后,分别进行直流射程和喷雾射程的测量。水枪在喷射轴线上喷射水流连续散落最远处至喷嘴出口端中心在地面上的垂直投影点之间的距离折回 10% 视为射程。
对喷雾角可调的喷雾水枪,喷雾射程在 30° 喷雾角下测定。
判断试验结果是否符合规定。
1.3 流量试验
根据水枪的流量选择容积计量罐,水泵启动后,使水枪喷射,待达到额定喷射压力并稳定后,转向计量罐内喷射,连续喷射时间不少于 30s,水枪移开 20s 后测出计量罐内水的体积或质量,经计算求得水枪的流量。或用标定合格的流量计直接测量流量。以流量计测量法作为仲裁方法。
判断试验结果是否符合规定。
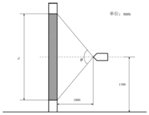
2、雾状水流及开花水流试验
将水枪置于离地面 1.5m±0.01m 的喷射架上,距离水枪喷嘴 1m±0.01m 处布置一块带有刻度的挡板如图 1。在水枪喷射时,观察雾状水流或开花水流边缘所能达到的区域,并读出边缘直径 d,代入公式(1)后计算出角度θ,判断试验结果是否符合规定。
θ=2*arctan(d/2)……………………………………………(1)
式中:
θ——喷雾角或开花角,单位为度(°);
d——边缘直径,单位为米(m)。

图 1 喷雾角与开花角测量示意图
3、操作及结构试验
3.1 穿戴符合XF7要求的消防手套对水枪活动部件进行操作,判断试验结果是否符合规定。
3.2 对直流开关水枪的杆式手柄进行检查,判断试验结果是否符合规定。
3.3 对转换式直流喷雾水枪、转换式多用水枪的杆式手柄进行检查,判断试验结果是否符合规定。
3.4 对带有"U"形手柄的导流式直流喷雾水枪进行检查,判断试验结果是否符合规定。
3.5 对于直流喷雾水枪﹑直流开花水枪,进行直流喷雾或直流开花转换操作,判断试验结果是否符合规定。
3.6 对于中压水枪﹑高压水枪的扳机式开关进行检查,判断试验结果是否符合规定。
3.7 操作力矩测量应符合下述要求:
a)将水枪置于试验装置上,关闭水枪上的开关,对水枪加压至额定喷射压力,用测力计测量水枪开关从关闭至全开的最大操作力矩,允许测量误差为 ±0.5N•m,判断试验结果是否符合规定。
b)将水枪置于试验装置上,使水枪在额定喷射压力下直流喷射,用测力计测量水枪从直流切换至喷雾状态的最大操作力矩,允许测量误差为 ±0.5N•m,判断试验结果是否符合规定。
c)将水枪置于试验装置上,使水枪在额定喷射压力下最小流量档位直流喷射,用测力计依次测量水枪从最小流量档位切换至最大流量档位的最大操作力矩,允许测量误差为 ±0.5N•m,判断试验结果是否符合规定。
d)将水枪置于试验装置上,使水枪在额定喷射压力下直流喷射,用测力计测量水枪从切换流道时的最大操作力矩,允许测量误差为 ±0.5N•m,判断试验结果是否符合规定。
e)将水枪置于试验装置上,使水枪在额定喷射压力下直流喷射,用测力计测量水枪从直流切换至冲洗档位的最大操作力矩,允许测量误差为 ±0.5N•m,判断试验结果是否符合规定。
3.8 对导流式低压直流喷雾水枪的冲洗功能档位进行操作检查,判断试验结果是否符合规定。
4、质量试验
测量前应保证水枪内不得留有余水、污物,用准确度不低于 3 级的电子秤测量水枪的质量,判断试验结果是否符合规定。
5、往复操作试验
5.1 在水枪内无余水残留的情况下,对水枪旋转部件进行 300 次往复操作试验(部件完全旋转至一个方向后返回到起点作为 1 次),判断试验结果是否符合规定。
5.2 往复操作试验后用测力计测量旋转部件的操作力矩,判断试验结果是否符合规定。
6、材料试验
铸造铝合金、铸造铜合金、压铸铝合金、压铸铜合金的化学成分和力学性能试验应分别按 GB/T 1173、GB/T 1176、GB/T 15115、GB/T 15116 的规定进行,其他材料的化学成分和力学性能试验按相应标准的规定进行,判断检查结果是否符合要求。
7、密封件试验
7.1 目测检查水枪密封件,判断检查结果是否符合要求。
7.2 使用标准量具对O型密封圈进行测量,判断检查结果是否符合要求。
8、螺纹试验
用螺纹规或万能工具显微镜检查水枪上所使用的全部螺纹,判断试验结果是否符合要求。
9、表面质量检查
目测检查水枪外表质量,判断检查结果是否符合要求。
10、密封性能试验
10.1 对于低压水枪最大工作压力是 1.6MPa,对于中压水枪最大工作压力是 2.5MPa,对于高压水枪最大工作压力是 4.0MPa。
10.2 试验装置允许工作压力应大于水枪最大工作压力的 1.6 倍,稳压精度 ±2%。装置中的压力测量精度不低于 1.5 级。
10.3 关闭水枪的开关,水枪的进水端通过接口与试验装置相连,加压过程中必须先排除枪体内的空气,然后缓慢加压至最大工作压力,保压 2min,判断试验结果是否符合要求。
10.4 打开水枪的开关,水枪的进水端通过接口与试验装置相连,封闭水枪的出水端。加压过程中必须先排除枪体内的空气,然后缓慢加压至最大工作压力,保压 2min,判断试验结果是否符合要求。
11、耐水压性能试验
11.1 试验装置允许工作压力应大于水枪最大工作压力的 1.6 倍,稳压精度 ±2%。装置中的压力测量精度不低于 1.5 级。
11.2 水枪状态同 10.4,加压过程中必须先排除枪体内的空气,然后缓慢加压至最大工作压力的 1.5 倍,保压 2min,判断试验结果是否符合要求。
12、使用环境温度试验
12.1 耐高温试验
将水枪置于高温箱内,在 55℃±2℃ 下存放 24h,取出后 30s 内检查,判断试验结果是否符合要求。
12.2 耐低温试验
将干燥的水枪(不带开关的直流水枪除外)置于低温箱内,在 -30℃±2℃ 下存放 24h,取出后 30s 内检查,判断试验结果是否符合要求。
13、抗跌落试验
13.1 低压水枪跌落试验
13.1.1 水枪以喷嘴垂直朝下(旋转开关处于关闭)的位置,从离地 1.8m±0.02m 高处(从水枪的最低点算起)自由落到混凝土地面上。跌落两次后检查,判断试验结果是否符合要求。
13.1.2 水枪连接在长度不小于3m的水带上,在保证水带平直,水枪水平的情况下,将水枪从离地 1.8m±0.02m 高处(从水枪的最低点算起)自由落到混凝土地面上。对水枪两侧(若有开关时,开关关闭并面对地面作为一次)进行两次跌落后检查,判断试验结果是否符合要求。
13.1.3 水枪(不带开关的直流水枪除外)连接在长度不小于3m的水带上,水枪关闭并缓慢加压至水带充满额定喷射压力的清水。在保证水带平直,水枪水平的情况下,将水枪从离地 1.8m±0.02m 高处(从水枪的最低点算起)自由落到混凝土地面上。对水枪两侧(若有开关时,开关关闭并面对地面作为一次)进行两次跌落后检查,判断试验结果是否符合要求。
13.2 中压水枪和高压水枪跌落试验
水枪以喷嘴垂直朝上﹑喷嘴垂直朝下(开关处于关闭位置)以及水枪轴线处于水平(若有开关时,开关处于水枪水平轴线之下并处于关闭位置)三个位置,从离地 1.8m±0.02m 高处(从水枪的最低点算起)自由落到混凝土地面上。水枪于每个位置坠落两次后检查,检查结果应符合要求。
13.3 将跌落后的试样按 10 的规定,进行密封性能试验,判断试验结果是否符合要求。
13.4 将跌落后的试样按规定进行操作力矩测量,判断试验结果是否符合要求。
14、耐盐雾腐蚀试验
14.1 试验前对水枪表面作仔细清洗,不得留有油腻、污物。清洗时不准使用磨料或溶剂。水枪在盐雾腐蚀试验箱内应呈直立状态,枪口朝上,水枪之间不能互相接触,水枪也不能与箱壁接触。
14.2 试验周期为 120h。试验中必须防止盐溶液直接冲击水枪表面。试件从盐雾腐蚀箱内取出后,应用不超过 38℃ 的清水冲洗,待干燥后检查,判断试验结果是否符合要求。
14.3 盐雾腐蚀试验的试验条件应符合下述规定:
a)氯化钠溶液浓度为 50g/L±lg/L;
b)25℃ 时的 pH 值应保持在 5~7.2 范围内;
c)喷雾速率为 1mL/h~2mL/h(有效面积为 80cm² 的收集器,放入试验箱内 24h 所测量的平均喷雾速率);
d)试验箱内的温度应保持在 35℃±5℃;
e)试验周期内喷雾不得中断。除了在检查或其他必要操作时才可短时打开试验箱,但不应触摸水枪表面。
15、耐热空气老化试验
15.1 热空气老化箱应符合 JB/T 7444 规定的要求。其温度波动度不大于 ±1.5°C;温度均匀度不大于 ±1°C。
15.2 将水枪试样置于热空气老化箱内的试样架上,试样与箱壁之间的距离不应小于 50mm。
15.3 试样在 70°C±1°C 条件下试验 180 天,然后在温度为 23°C±1°C,相对湿度为 50%±1% 的空气中冷却 24h 以上。
15.4 将老化后的试验按 13.1~13.3 的规定进行抗跌落试验,判断试验结果是否符合要求。
16、耐紫外线辐射试验
将水枪试样或者关键部件试样置于老化试验箱按 GB/T 16422.2-2014 的表 3 规定的第 2 种暴露循环类型进行试验,试验共进行 720h。试验进行至 360h 时,检查试样情况。如果试样正常则继续进行剩下的 360h 试验,判断试验结果是否符合要求。
17、耐温水老化试验
将水枪试样完全浸没在温度维持在 82°C±1°C 的水中试验 30 天,然后在温度为 23°C±1°C,相对湿度为 50%±1% 的空气中冷却 16h 以上,检查试样情况,判断试验结果是否符合要求。
18、接口性能试验
查看接口的检验报告,判断检查结果是否符合规定。
注:对于 360° 可旋转结构的接口采用量具进行尺寸测量,判断检查结果是否符合规定。
19、冲洗功能试验
水枪以喷嘴垂直朝下的位置,并切换至全开档位或者冲洗档位,将相应直径的钢球从水枪入口端放入,检查钢球的通过情况,判断试验结果是否符合要求。