乙炔气瓶安全性能试验包括水浴升温试验、回火试验(跌落试验及回火程序)、模拟火灾试验及冲击稳定性试验 4 项内容,各项对应的试验方法见如下内容:
1、水浴升温试验
1.1 试验程序
1.1.1 受试瓶按表 1 规定的量灌注溶剂并充装乙炔。
1.1.2 将受试瓶放在试验水槽中央并浸没于水中,将水逐渐加热,使水温保持在 65℃±2℃;测定瓶内压力。直到连续 2h 内压力恒定或压力曲线表明瓶内已出现液压时为止。
1.2 合格标准
瓶内未出现满液的液压;或者最大压力未超过气瓶试验压力。
1.3 替代计算法
1.3.1 替代计算法仅适用于以丙酮为溶剂的乙炔气瓶。
1.3.2 按公式(1)计算 VF65:

1.3.3 如果计算所得 VF65 大于 0,则证明气瓶内部在 65℃ 时仍有自由空间,试验合格。
表 1 型式试验试验瓶数量及溶剂、 乙炔充装量一览表

2、回火试验
2.1 试验程序
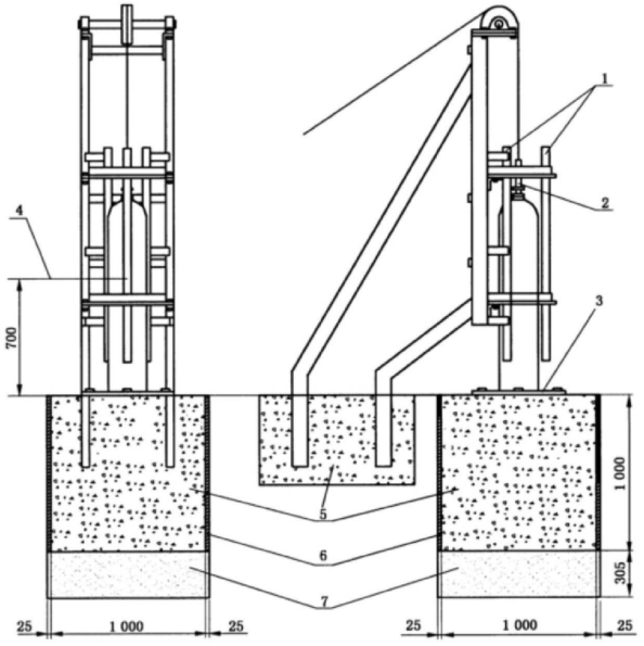
2.1.1 跌落试验
2.1.1.1 受试瓶按表 1 规定的量灌注溶剂。
2.1.1.2 将受试瓶从不小于 0.7m 高处自由地跌落到盖有棉纤维酚醛树脂层压板的混凝土惯性块上连续 10 次,跌落处理试验装置示意图如图 1 所示。跌落前后均需测量填料的肩部轴向间隙,将测量结果记入回火试验报告中,并确认跌落后的间隙符合表 1 中脚注 c 的要求。
2.1.2 回火程序
2.1.2.1 将经过跌落试验的受试瓶,装上如图 2 所示的引爆管。
2.1.2.2 按表 1 规定的量充装乙炔。
2.1.2.3 在不低于 15℃ 的环境中卧放至少 24h。
2.1.2.4 直立浸没于水温保持在 35℃±2℃ 的水池中至少 3h,使瓶内压力升至 2.0MPa~2.1MPa。
2.1.2.5 尽快将受试瓶立放于引爆点,在瓶内压力降低值不超过 2.1.2.4 的最大压力的 5% 前,通电点火、引爆。
2.2 合格标准
乙炔气瓶经回火试验后,应符合下列要求:
——不爆炸;
——瓶体无明显变形;
——点火后至少24h内,除易熔合金塞泄漏外,其他任何部位无泄漏。
单位为毫米
![]() | 说明: 1——导轨; 2——瞬间脱钩装置; 3——保护板; 4——行程高度; 5——混凝土块; 6——隔音垫(可不用); 7——砂。 |
注 1:地基:混凝土块的推荐配比为水泥 50.8kg、沙 71L、石子(尺寸为 5mm~9mm)142L,混凝土整体浇筑;保证放置保护板的表面光滑、完全水平。
注 2:保护板由一块 25mm 厚的棉纤维酚醛树脂层压板制成(16 层/cm~18 层/cm),保护板的布氏硬度为 48HB(测量球径为 10mm、载荷为 300kg)。
图 1 跌落试验装置示意图
单位为毫米
![]() | 说明: 1——用于受试瓶充装乙炔的瓶阀; 2——点火源(推荐采用直径 0.2mm,长 15mm 的钨丝); 3——点火装置; 4——引爆管; 5——锥螺纹与阀座螺纹一致。 |
图 2 回火试验用引爆管
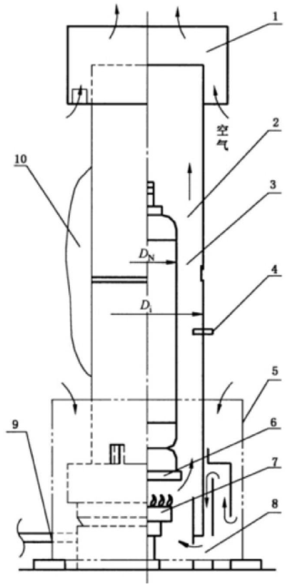
3、模拟火灾试验
3.1 试验程序
3.1.1 受试瓶按表1 规定的量灌注溶剂并充装乙炔。
3.1.2 放在温度不低于 18℃ 的环境中 18h 以上。
3.1.3 放入图 3 所示试验装置中。烟囱的内径至少为乙炔气瓶的外径加 100mm。
3.1.4 点火并调节风量和燃料量,以保证点火后 5min 内,试验装置内受试瓶中部周围温度不低于 650℃,但明火不得触及受试瓶。
3.2 合格标准
乙炔气瓶经模拟火灾试验后,应符合下列要求:
——易熔合金塞动作;
——乙炔气瓶没有严重破坏。
![]() | 说明: 1——倒烟导流板; 2——顶部; 3——中部; 4——热电偶(4 个互成 90°); 5——二次风罩(可不用); 6——乙炔气瓶支座; 7——炉盘; 8——底部; 9——燃气管; 10——保温层。 注:Di=Dn+100mm。 |
图 3 模拟火灾试验装置结构示意图
4、冲击稳定性试验
4.1 试验程序
4.1.1受试瓶按表 1 规定的量灌注溶剂并充装乙炔。
4.1.2 将受试瓶水平放置并固定。
4.1.3 用落锤法在受试瓶中部(避开焊缝)冲击出深度不小于受试瓶外径四分之一的凹坑。
注:落锤头部应为光滑球面,其直径约为受试瓶外径的 1/3。
4.1.4 受冲击 24h 后,放尽瓶中乙炔气,并沿凹坑中轴线将受试瓶纵向剖开检查。
4.2 合格标准
测量凹坑深度,如果凹坑深度不小于受试瓶外径的 1/4,则试验有效。且:
——乙炔分解未扩展,但紧贴凹坑处的局部乙炔分解是允许的;
——瓶体无可见裂纹造成的泄漏。