评定液压往复运动密封件性能的试验参数和试验程序-「亿威仕」

评定液压往复运动密封件性能的试验参数和试验程序

0     编辑:亿威仕 | 市场部     2025-03-27    

评定液压往复运动密封件性能的试验参数和试验程序:

1、试验参数

1.1 试验介质

试验介质应是符合 GB/T 7631.2-2003 规定的 ISO-L-HS32 合成烃型液压油液。

1.2 试验介质温度

在试验过程中,试验介质温度应保持在 60℃~65℃。

1.3 支承环

支承环应符合要求,其沟槽应满足要求。

1.4 试验压力

试验压力 p1,选择如下,误差控制在 ±2%:

——6.3MPa(63bar);

——16MPa(160bar);

——31.5MPa(315bar)。

1.5 线性驱动器速度

线性驱动器速度,选择如下,误差控制在 ±5%:

——0.05m/s;

——0.15m/s;

——0.5m/s。

1.6 动态试验

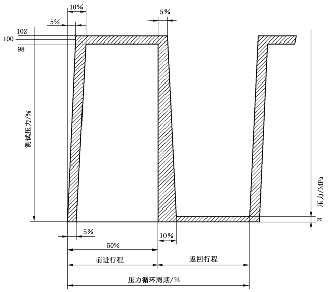
试验压力和行程应按如下方式循环:

a)在恒定压力 p1 下的前进行程;

b)在恒定压力 p2 下的返回行程。

压力循环应满足图 1 要求,行程循环应满足图 2 要求。

图 1 压力循环示意图图 2 速度循环示意图
图 1 压力循环图 2 速度循环

2、试验程序

2.1 试验步骤

2.1.1 按 GB/T 10610-2009 沿着活塞杆轴向测量试验活塞杆表面粗糙度 RaRt,每次取样长度 0.8mm,评定长度 4mm。

2.1.2 使用分辨率为 0.02mm 的非接触测量仪器测量新试验密封件尺寸:d1d2S1S2h

2.1.3 安装新试验密封件和 2 个新的泄漏集油防尘圈。

2.1.4 将油温升到试验温度。

2.1.5 试验装置以线速度v,稳定介质压力 p1 往复运动 1h。

2.1.6 在往复运动结束前,记录至少一个循环的摩擦力曲线,并记录摩擦力 Ft

2.1.7 停止往复运动,维持试验压力 p1 和试验温度 16h。

2.1.8 按规定测量启动摩擦力。

2.1.9 试验装置继续以线速度 v 按 1.6 的循环要求往复运动,压力在前进行程 p1 和返回行程 p2 之间交替。

2.1.10 完成 200 000 次不间断循环(线速度为 0.05m/s 时,完成 60 000 次循环)。如果循环中断,忽略重新启动至达到平稳状态时的泄漏。

2.1.11 在不间断循环过程中,每试验 24h 后和完成 200 000 次循环后,收集、测量并记录每个密封件的泄漏量。

2.1.12 完成不间断循环后,按 2.1.5 和 2.1.6 测量恒定压力下的摩擦力。

2.1.13 继续按 2.1.9 的要求进行往复运动。

2.1.14 不间断完成总计 300 000 次循环。速度为 0.05m/s 时完成总计 100 000 次循环。

2.1.15 完成不间断循环后,按 2.1.5 和 2.1.6 测量恒定压力下的摩擦力。

2.1.16 按 2.1.7 和 2.1.8 再次测量启动摩擦力。

2.1.17 停止试验。

2.1.18 按 2.1.2 测量拆下的试验密封件,并对密封件的状况进行拍照和记录。

2.2 试验次数

为了获得合理的数据,每一类型密封件应至少进行 6 次试验。