低温装置用密封垫片(以下简称"低温垫片")的低温密封性能测试按如上要求和程序进行。
1、试验装置
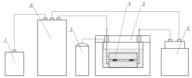
1.1 试验在专用的低温密封性能试验装置上进行。试验装置主要由低温源、试验介质及加压系统、测漏系统、试验法兰装置、数据采集及控制系统组成,如图 1 和图 2 所示。

标引序号说明:
1——试验介质(氦气)及增压系统;2——低温槽;3——低温源;
4——试验法兰;5——氦质谱仪;6——数据采集及控制系统。
图 1 试验装置

标引序号说明:
1——辅助密封圈;2——试验垫片;3——氦气进入口;4——泄漏检测口。
图 2 试验法兰装置
1.2 低温系统应能提供规定的试验温度。试验过程中温度的波动应保持在 ±5℃。
1.3 试验介质加压系统应能提供规定的试验介质压力。试验过程中介质压力波动应小于规定值的 0.5%。
1.4 测漏采用氦质谱仪"护罩法"。测漏系统分辨率应不低于 10-9Pa·m3/s。
1.5 试验法兰采用刚性模拟平面法兰,法兰厚度与直径之比应不小于 1/3。法兰材料宜采用奥氏体低温钢,其强度极限不小于 500MPa,密封面硬度不小于 40HRC,密封面表面粗糙度应在 3.2μm~6.3μm 之间。
2、试样
2.1 试样应在温度 21℃~30℃,相对湿度(50±6)% 的环境下放置至少 24h。
2.2 试样规格及试验条件见表 1。
表 1 试样规格及试验条件
| 试样类型 | 试样规格 | 试验介质 | 试验温度 ℃ | 预紧应力 MPa | 介质压力 MPa |
| 非金属垫片 | DN80 厚度 3.0mm | 纯度 99.9% 的氦气 | -196~-29 | 35 | 4 |
| 缠绕式垫片 | DN80 带内环和定位环型 厚度 4.5mm | 70 | 1.1 倍 公称压力 | ||
波齿/齿形 组合垫片 | DN80 带定位环型 厚度 4.0mm | 45 |
3、试验程序
3.1 试验准备
3.1.1 按 GB/T 38343 的规定对法兰工装和密封面进行检查,无异常后进行组装紧固,并达到表 1 的预紧应力要求。
3.1.2 检查其他装置、仪表是否正常。确保试验法兰装置安放在没有低温汽化气体的位置。
警告:低温有造成人体冻伤、灼伤的可能,应按相关要求穿戴好防护用品。
3.2 操作程序
3.2.1 在常温及表 1 规定垫片试验压力下,使用氦气做初始试验,记录泄漏量。确保组件常温下的密封性能满足低温密封性能指标要求。
3.2.3 常温检测通过后,关闭试验介质开关,把装有垫片的法兰放入低温槽中进行冷却。冷却温度稳定在试验温度 ±5℃,并保持 25min~35min。
3.2.4 打开试验介质开关,使介质压力达到表 1 的要求,保持 10min,在检测口连接氦质谱仪,再保持 10min 后,读取试验数据。
3.2.5 试验结束后,拆开工装组件,检查垫片的完好程度。
3.3 试验次数及结果
3.3.1 从同一样本中选取三个试样进行试验。
3.3.2 取三个试验数据的算术平均值作为最终的试验结果,取两位有效数字。
4、试验报告
试验报告应包括以下内容:
a)试验垫片的名称、材料、尺寸和标记;
b)试样编号和数量;
c)试验条件(垫片预紧应力、试验温度、试验介质和压力、试验时间);
d)试验结果(每个试样的低温密封性能值及该样本的平均值);
e)试验人员和日期。