今天给大家带来的分享是关于“金属承压壳体的疲劳压力试验方法之液压缸的特殊要求”的内容。
1、概述
1.1 本附录规定了液压缸承压壳体进行疲劳压力试验的方法,适用于按照 ISO 标准(如 ISO6020-1)设计的、缸径 200mm 以内的以下各类型液压缸:
——拉杆型;
——螺钉型;
——焊接型;
——其他紧固连接类型。
1.2 本试验方法不适用于以下情况:
——在活塞杆上施加侧向负载;
——由负载/应力引起活塞杆挠性变形。
1.3 液压缸的承压壳体包含:
——缸体;
——缸的前、后端盖;
——密封件沟槽;
——活塞;
——活塞和活塞杆的连接;
——任何承压元件(如缓冲节流阀、单向阀、排气塞、堵头等);
——用于前端盖、后端盖、密封沟槽、活塞和固定环的紧固件(如弹簧挡圈、螺栓、拉杆、螺母等)。
注 1:其他部分,如:底板、安装附件和缓冲件,不作为承压壳体的元件部分。
注 2:虽然底板不是承压元件,但可利用本附录叙述的试验方法对其做耐久性的疲劳试验。
2、常规液压缸承压壳体的试验装置
液压缸的行程应至少为图 1 确定的长度。

说明:1——拉杆型液压缸;2——其他类型液压缸;X——缸径;Y——行程。
图 1 缸径对应的最小行程
使用试验装置将活塞杆端头固定且保持与活塞杆同轴(为满足要求,可修改活塞杆伸出端)。该试验装置应确定活塞的大致位置,对于拉杆型液压缸,应使活塞距后端盖的距离(L)(见图 2)在 3mm~6mm;对于非拉杆型液压缸,应使活塞大致位于缸体的中间。
为减少壳体内受压容积,可在承压壳体内放置一些填充物(如钢球、隔板等)。但是,填充物不应影响对被试元件加压。

图 2 液压缸试验装置
3、试验压力的施加
液压缸的前、后两端宜有两组油口,一个连接压力源,另一个连接测压装置。
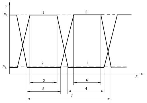
首先以高于循环试验高压下限值(pU)的试验压力施加于活塞的一侧,以低于循环试验低压上限值(pL)的试验压力施加于活塞的另一侧。然后交换这两个压力,产生一个压力循环,如图 3 所示。

说明:1——侧面 1;2——侧面 2;3——侧面 1 的 T1;4——侧面 1 的 T2;
5——侧面 2 的 T2;6——侧面 2 的 T1;7——一个循环;X——时间;Y——压力。
图 3 试验压力波形
活塞未增压一侧的时间段 T2 应比 T1 长。为此,活塞任一侧的时间段 T1 不应在另一侧压力降低到 pL 以下之前开始。活塞任一侧的时间段T1 应在另一侧压力上升到 pL 以上之前结束。
加压波形可是任何形状。