今天给大家带来的分享是关于阀门启闭扭矩测试方法与测试要求的内容,内容适用于闸阀等多回转阀门和球阀等部分回转阀门的启闭过程操作扭矩测试。
1、测试方法
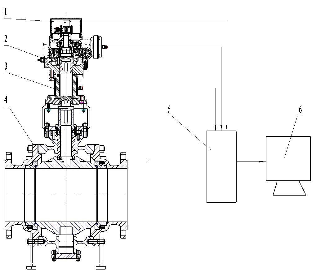
阀门启闭扭矩测试,由扭矩测试装置完成。扭矩测试装置由扭矩传感器,扭矩输出型驱动装置,位置传感器、控制单元,数据输出设备等组成,典型原理图如图 1 所示。
2、测试要求
2.1 扭矩传感器一端与被测阀门连接,另一端与驱动装置连接。两端部应采用带止口定位的法兰连接,以确保驱动装置输出轴与阀杆同轴。
2.2 驱动装置的运动由控制单元控制。
2.3 由扭矩传感器和位置传感器输出的电信号,输入控制单元转换后,其测试过程及结果数据应能显示、打印、贮存。
2.4 阀门启闭扭矩测试,应按制造厂或用户要求的压力工况进行测试。在阀门压力试验下进行测试时,应符合 GB/T 13927 或 GB/T 26480 的规定。
2.5 扭矩测试装置所用扭矩传感器、位置传感器的精度应不大于 0.5%,系统测量误差应不大于 2%。
2.6 闸阀等多回转型扭矩测试装置的输出转速应为 18r/min 或 36r/min。为保持扭矩测试曲线的连续性,输出轴每转1圈其扭矩采样点应不少于 120 个。输出转速、采样点也可按订货合同的要求。

说明:1——位置传感器;2——扭矩输出型驱动装置;3——扭矩传感器;4——被测阀门;5——控制单元;6——数据输出。
图 1 典型扭矩测试装置原理图
2.7 球阀等部分回转型扭矩测试装置的输出转速应为 0.125r/min~1r/min。为保持扭矩测试曲线的连续性,在 0~100% 测量范围内的采样点,每 1% 变化量应不少于 1 个。输出转速、采样点也可按订货合同的要求。
2.8 扭矩测试装置安装方式可为卧式或立式。
2.9 为便于扭矩测试装置与被测阀门安装,大规格扭矩测试装置应设置起吊位,使其平稳吊装。
2.10 扭矩测试装置应具有限定测试最大扭矩的功能,传感器检测到测试最大扭矩值时,能紧急切断电源,停止工作,最大限度保证扭矩传感器和被测试阀门不被损坏。
2.11 扭矩测试装置与被测阀的连接应符合 GB/T 12222、GB/T 12223 或 ISO 5210:2017、ISO 5211:2017 的规定,或按订货合同的要求。
以上就是今天的分享!如果您对用于上述试验的阀门扭矩测试装置感兴趣,欢迎与我们联系!
