今天给大家带来的分享是关于汽车气压制动系统用快插接头的耐压性及重复装拆性的试验方法。汽车气压制动系统用快插接头(以下简称快插接头)是一种用于汽车气压制动系统中最大工作压力为 1.25MPa 及以下、环境工作温度为 -40℃~100℃ 的尼龙管路中的金属快插接头和非金属快插接头。(以下测试方法不适用于牵引车与挂车之间的连接器接头)
1、耐压性
1.1 试验样品
5 套快插接头与气压制动管的装配组件,气压制动管长度为 450mm±3mm。
1.2 试验方法
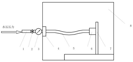
1.2.1 将试验样品按照图1所示安装在试验装置上。在室温下向试验样品施加 2.76MPa±0.07MPa 的水压并保压 30s±5s。再以恒定的速率增加压力,使得在 3s〜15s 内达到表 1 所规定的试验压力。
1.2.2 观察试验样品的分离情况和泄漏情况。

1、5——气压制动管;2一—截止控制阀;3——压力表;4——试验台左夹具;
6——快插接头;7——试验台右夹具;8——耐压试验箱。
图 1 耐压试验装置示意图
表 1 气压制动管耐压性试验压力
| 气压制动管规格 mm | 试验压力 MPa |
| φ6*1 | 5.5±0.07 |
| φ8*1 | |
| φ10*1.25 | |
| φ12*1.5 | |
| φ14*1.5 | 4.8±0.07 |
| φ15*1.5 | |
| φ16*2 |
2、重复装拆性
2.1 试验样品
5 套快插接头与气压制动管的装配组件,气压制动管长度为 300mm±5mm。
2.2 试验方法
2.2.1 对直插式快插接头试验样品,将试验样品按照图 2 所示安装,螺纹端封堵,气压制动管一端与快插接头插接装配。对间插式快插接头试验样品,将试验样品按照图 2 所示安装,接头座螺纹端封堵,带气压制动管的接头与接头座对接装配。

1——气压密封检测仪;2——气压制动管;3——快插接头;4——堵头工装;5——环境试验箱。
图 2 密封性试验装置示意图
2.2.2 从气压制动管另一端通入 1.5MPa±0.07MPa 的气压,保持 5min±0.5min,然后降至大气压,拆卸快插接头组件。
2.2.3 重复 2.2.2 五次(间插式快插接头仅针对接头与接头座拆装五次)。最后一次重新装配时(直插式快插接头允许修整管端),给试验样品加压至 1.5MPa±0.07MPa,并检测泄漏率。