今天给大家带来的分享是关于液压缸承压壳体进行疲劳压力试验的方法。该方法适用于按照 ISO 标准(如 ISO 6020-1)设计的、缸径 200mm 以内的以下各类型液压缸:
——拉杆型;
——螺钉型;
——焊接型;
——其他紧固连接类型。
本试验方法不适用于以下情况:
——在活塞杆上施加侧向负载;
——由负载/应力引起活塞杆挠性变形。
液压缸的承压壳体包含:
——缸体;
——缸的前、后端盖;
——密封件沟槽:
——活塞;
——活塞和活塞杆的连接;
——任何承压元件(如缓冲节流阀、单向阀、排气塞、堵头等);
——用于前端盖、后端盖、密封沟槽、活塞和固定环的紧固件(如弹簧挡圈、螺栓、拉杆、螺母等)。
注 1:其他部分,如:底板、安装附件和缓冲件,不作为承压壳体的元件部分。
注 2:虽然底板不是承压元件,但可利用本附录叙述的试验方法对其做耐久性的疲劳试验。
1、常规液压缸承压壳体的试验装置
液压缸的行程应至少为图 1 确定的长度。

说明:1——拉杆型液压缸;2——其他类型液压缸;X——缸径;Y——行程。
图 1 缸径对应的最小行程
使用试验装置将活塞杆端头固定且保持与活塞杆同轴(为满足要求,可修改活塞杆伸出端)。该试验装置应确定活塞的大致位置,对于拉杆型液压缸,应使活塞距后端盖的距离(L)(见图 2)在 3mm〜6mm;对于非拉杆型液压缸,应使活塞大致位于缸体的中间。
为减少壳体内受压容积,可在承压壳体内放置一些填充物(如钢球、隔板等)。但是,填充物不应影响对被试元件加压。

图 2 液压缸试验装置
2、试验压力的施加
液压缸的前、后两端宜有两组油口,一个连接压力源,另一个连接测压装置。
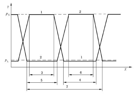
首先以高于循环试验高压下限值(pU)的试验压力施加于活塞的一侧,以低于循环试验低压上限值(pL)的试验压力施加于活塞的另一侧。然后交换这两个压力,产生一个压力循环,如图 3 所示。

说明:1——侧面 1;2——侧面 2;3——侧面 1 的 T1;4——例面 1 的 T2;5——例面 2 的 T2;
6——例面 2 的 T1;7——一个循环;X——时间;Y——压力。
图 3 试验压力波形
活塞未增压一侧的时间段 T2 应比 T1 长。为此,活塞任一侧的时间段 T1,不应在另一侧压力降低到 pL 以下之前开始。活塞任一侧的时间段应在另一侧压力上升到 pL 以上之前结束。
加压波形可是任何形状。
以上就是今天的分享!如果您对用于上述性能试验的液压缸承压壳体疲劳压力试验装置感兴趣,欢迎与我们联系!
