今天给大家带来的分享是关于液压支架用软管及软管总成(以下简称软管总总)的脉冲试验方法。(如果您对相关的脉冲试验装置感兴趣,欢迎与我们联系!电话:0755-8889 8859.)
根据相关标准规定,软管总成的脉冲试验工作液温度允许从冷态(室温)开始,工作液为高含水液压液时温度应控制在(35±4)℃范围;工作液为20号机械油时温度应控制在(93±5)℃范围。具体试验方法程序如下:
1、软管总成试验装置的参考液压回路原理图见图 1。

图 1 软管总成试验装置的参考液压回路原理图
2、脉冲试验频率为 0.5~1.25Hz(30~75 次/min),脉冲试验压力为设计工作压力(见表 1、表 2)的 133%,脉冲次数应不少于 20 万次。
表 1 钢丝编织软管性能参数


表 2 钢丝缠绕软管性能参数

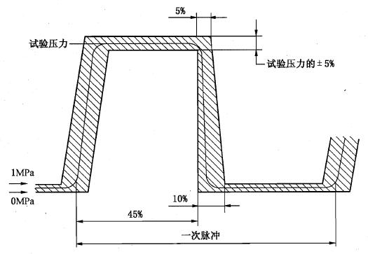
3、脉冲压力波形应符合图 2 的要求。

图 2 脉冲压力波形
4、在脉冲压力 15%~85% 的压力范围内,升压速率应为 350~700MP/s,见图 3。

图 3 脉冲试验压力上升速度测定方法
5、脉冲试验软管弯曲程度和自由长度应符合表 3 要求。
表 3 脉冲试验软管弯曲程度和自由长度
公称内径 mm | 弯曲程度 | 自由长度 L mm |
| >22 | 90° | 0.5πr+2d |
| ≤22 | 180° | πr+2d |
| 注1:r 为软管最小弯曲半径;d 为软管公称外径。 注 2:软管自由长度可采用表 1、表 2 中规定值。 | ||
6、公称内径小于或等于 22mm 时弯曲 180°,使其两端头处于同一平面,相距为最小弯曲半径的两倍,允差为 5%。公称内径大于 22mm 时弯曲成 90°。试验连接图见图 4。
![]() | ![]() |
公称内径小于或等于 22mm a)弯曲 180° | 公称内径大于 22mm b)弯曲 90° |
d——软管公称外径;r——软管最小弯曲半径。
图 4 软管脉冲试验连接图
7、在达到规定的脉冲次数之前,试件不应有泄漏或其他异常现象。如果接头拔脱或靠近接头 25mm 范围内软管发生破坏,视作软管总成的损坏,并记录失效形式、部位和试验压力。
8、如脉冲试验由于不可避免的原因停机 24h 以上,重新开始试验时,在接头连接处可能会出现轻微渗漏,这一现象如在 30min 内自动消失,则不视为试验失效。
9、记录破坏时的周期数,如未发生破坏则记录所完成的周期数。
