橡胶垫片的密封性试验在标准室温下进行,采用泄露速率来评定不同压缩法兰载荷下橡胶垫片的密封性能。根据测试介质的不同,有 A、B 两种测试方法(A 法:适用于被体泄漏的测定;B 法:适用于气体泄漏的测定)。下面就和大家一起分享学习。
1、试验原理
对夹在两个光滑钢质法兰面之间的环形试样,施加规定的载荷,将试验介质引入环形试样的中心,然后给介质施加规定的压力。对于液体密封性能试验,推荐采用液体 A(见 GB/T 1690 表 2),并通过安装在垫片密封性能试验装置管路上游的液柱指示计液面的变化来测定泄漏速率。对于气体密封性能试验,推荐采用氮气,并通过安装在垫片密封性能试验装置管路上游液柱指示计液面的变化来测定泄漏速率。
2、试验装置
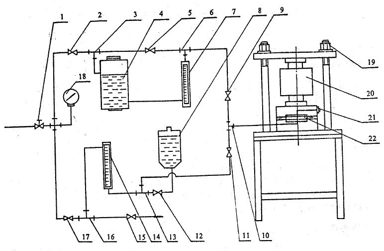
垫片密封性能试验装置主要由试验法兰盘、压力传感器、液柱指示计、调压阀及管路等组成,其连接见图 1 所示。

图 1 垫片密封性能试验仪测试管路示意图
1——调压阀;2、5、9、11、12、15、17——阀门;3、6、10、13、16——三通;4——贮水罐;7——液柱指示器;
8——贮液罐;14——液柱指示器;18——压力表;19一加荷螺母;20——压力传感器;21——堵头;22——试验腔.
2.1 试验法兰盘
由上、下两片钢质法兰组成,其工作面的表面粗糙度 Ra 为 0.80~1.60μm。
2.2 压力传感器
经标定的载荷传感器,其直径取决于所要求的载荷范围。
2.3 液柱指示计
长约 280mm,内径约 1.6mm,分度值为 0.05mL 的耐压玻璃管.
2.4 调压阀
用以调节和控制气源压力。
2.5 管路
用以连接各部件。
3、试样
3.1 试样制备
试样应按照 GB 9865 规定的方法进行制备,模压或冲切都可以。试样表面应平整、没有划伤和裂纹。
3.2 试样尺寸
试捧为环状,其内径为 32.20~32.30mm,外径为 44.20~44.30mm,厚度为 0.70~0.80mm。
3.3 尺寸测量
试样厚度的测量应按 GB/T 5723 规定的方法 A 进行测量,测量值应精确至 0.01mm。
3.4 试样数量
每一种材料至少 3 个试样。
3.5 试样的环境调节
制备好的试样在试验之前,应按 GB 2941 规定,在标准室温下进行环境调节。
4、试验步骤
4.1 A法:液体泄漏试验
4.1.1 试验法兰盘的清洗
为除去前次试验的残留物,应清洗试验法兰盘上下两片法兰的工作表面。必要时,用三氯乙烷清洗,并检查是否有裂口或划伤。
4.1.2 试验前泄漏的检查
试验前,放净贮水罐 4 中的水,用一弹性较好的橡胶板(厚度 2.5mm 以上)代替环形密封垫试样,按 4.1.3 装配好,并施以500kg f 的载荷,然后打开系统中的所有连通阀门(只有阀门 12 和阀门 15 关闭),再给系统充注 0.21MPa 的氮气,在系统各部件及其管路连接处涂以稀皂液,目测有无泄漏,无泄漏时方可进行试验。
4.1.3 试样的安装
将试样放在试验法兰盘下法兰的中央位置,放上上法兰使其与下法兰对齐,装上压力传感器,在 1min 内使试验部分的顶板对试样产生规定的载荷(夹紧力)。
4.1.4 试验液的充注
首先关闭阀门 2 和 9,打开阀门 15 和 11,关闭阀门 17,然后打开阀门 12,使贮油罐 8 中的试验液经管路流入试验腔和液柱指示计 14 中,打开上法兰盘上的螺旋塞堵头,当堵孔有少许试验液流出时,说明试验腔己充满了试验液,继续充注直到液柱指示计 14 中的液柱达到 1/2 以上液柱指示计高度时,关闭阀门 12,然后关闭阀门 15。
4.1.5 液体泄漏速率的测定
打开调压阀 1,使压力表 18 指示规定的压力值(如无特别说明,一般为 0.21MPa),轻轻开启阀门 17,载压气体经管路通入液柱指示计上端挤压液柱,待液柱指示计的液面稳定后,将阀门 17 开至最大,使试验腔内的液体达到规定的压力。经 5min 稳定后,读取 5min 时液柱指示计 14 的液面高度。以该读数为起始读数,每隔一定时间读取并记录液柱指示计的液面高度。时间间隔(如 5,10,30min 或 1h)应根据液柱指示计的液面移动速度选取,计算三次连续间隔的平均体积变化,以每小时的毫升数表示液体泄漏速率。
注:① 液体泄漏过程一般来说是相当缓慢的,试验过程往往要经过 1 至几个小时。
② 如果 2h 以上不出现世漏,经过同用户协商可适当提高工作压力,但最高工作压力不得超过 0.5MPa。
4.1.6 管路系统的卸压
试验完毕后,关闭阀门 1,再关闭闭门 17,打开上法兰盘堵头,用烧杯收集从液柱指示计及其下游管路中排出的试验液。然后卸掉法兰盘载荷,取下上法兰盘和试样。然后打开阀门 1 和 17,利用载压气体吹净管路内残留的试验液。将收集起来的试验液重新倒入贮油罐 8 中或作妥善处理。
4.2 B法:气体泄漏试验
4.2.1 试验法兰盘的清洗同 4.1.1。
4.2.2 试验前泄漏的检查同 4.1.2。
4.2.3 试样的安装同 4.1.3。
4.2.4 气体泄漏速率的测定
关闭阀门 2、9、11 和 17,打开阀门 5 和 9,慢慢开启阀门 2 和调压阀 1,使压力表 18 指示较小的压力(如 0.05MPa 以下),这时,载压气体经三通接头遇到密闭贮水罐及试验腔,贮水罐中的水将沿管路进入液柱指示计 7 并形成某一高度的水柱(一般不超过液柱指示计高度的 1/3,将阀门 2 关小,以防止水柱漫过水柱指示计 7 而进入管路。调节调压阀 1,使压力表 18 指示规定的压力(无特别说明,一般为 0.10MPa)。再打开阀门 17 和 11,往试验腔中充载压气体,这时,试验腔内的气体压力立即和贮水罐中的气体压力到达规定的压力并平衡,液柱指示计 7 中的水柱下降,通过调节阀门 17 和 11 的开启程度,使水柱面处在便于观察的高度(位于液柱指示计 1/3 高度以下),立即关闭阀门 11,然后关闭阀门 17,将阀门 2 开至最大,这时水柱面不再有大的移动.待稳定 0.5min,让液柱指示计 7 两端的压力充分平衡,然后关闭阀门 5,再稳定 3min,记录 3min 时水柱的高度作为起始读数,然后每隔一定时间(如 10,5,1min 和 30s 等)观察并记录水柱的高度,计算三次连续时间间隔的水柱高度变化的平均值,并换算成以每小时毫升数表示的气体泄漏速率。
注:① 气体泄漏过程是相当快的,30min 内部可完成试验.因此要迅速而准确地读取水柱高度。
② 最高工作压力不得超过 0.21MPa。
4.2.5 管路系统的卸压
试验完毕后,首先关闭阀门 1,打开阀门 17,然后打开阀门 15,缓慢卸去贮水罐中的压力,再打开阀门 11,卸掉密闭试验腔内的压力。
以上就是今天的分享!如果您对用于上述试验的橡胶垫片密封性能试验装置感兴趣,欢迎与我们联系!电话:0755-8889 8859。