循环脉冲试验是用于检测卡套式管接头在压力脉动冲击对产品密封性能的影响,通过长时间的模拟试验检测其使用寿命的一种检测方式。根据标准《GBT 3765 -2008 卡套式管接头技术条件》中内容规定,卡套式管接头进行循环脉冲性能试验应符合以下的方法及要求。
一、试验准则:
应对3组1型或3型试验总成,适用时对6组2型试验总成进行循环脉冲试验,以确认管接头连接可承受至少100万次峰值压力为1.33倍最大工作压力的脉冲冲击而不失效。
![]() | ![]() | ![]() |
| 管连接试验总成——1型 | 螺柱端连接试验总成——2型 | 无管连接的管接头能力试验总成——3型 |
二、试验步骤
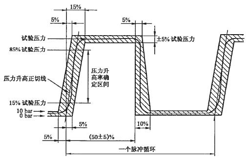
本循环脉冲试验应按下图所示波形以及下表所述参数及步骤进行。

(上图为:卡套式管接头循环脉冲试验波形图)
| 试验参数 | 参数值及步骤 | ||||||||
| 试验介质 | 符合GB/T7631.2要求的黏度不大于GB/T3141规定的VG32的液压油(如HM),或水,并入试验报告。 | ||||||||
| 试验压力 | 峰值压力为1.33倍管接头最大工作压力,频率为0.5Hz~1.25Hz的图B.6所示波形脉冲压力。 | ||||||||
| 试验时间 | 至少100万次循环脉冲。 | ||||||||
| 合格判定 | 试验期内无泄露或失效。 | ||||||||
三、经过循环脉冲试验的零件不允许再用于其他试验,也不允许投入实际使用或退回库房。
以上就是关于“卡套式管接头循环脉冲性能试验的方法及要求”的内容,另标准中有额外提到:如果进行了振动加循环脉冲试验可替代单独的循环脉冲试验和振动试验。所以大家在选用试验设备时,只需要购买一台循环脉冲振动试验台就可满足这两项的试验需求。
中国试验机领导品牌-深圳市红足1世足球网就是专门生产各类产品性能试验机的厂家,以卡套式管接头为例,不仅有循环脉冲振动试验台,还有用于接头密封性能、火烧、拉脱等方面的性能测试设备,欢迎有需要的客户朋友莅临我司参观考察!电话:0755-8889 8859 QQ:459675648.